.
école supérieure d’architecture, d’intérieur & design
Projet de diplôme en Architecture sur le thème : Éléments déclencheurs
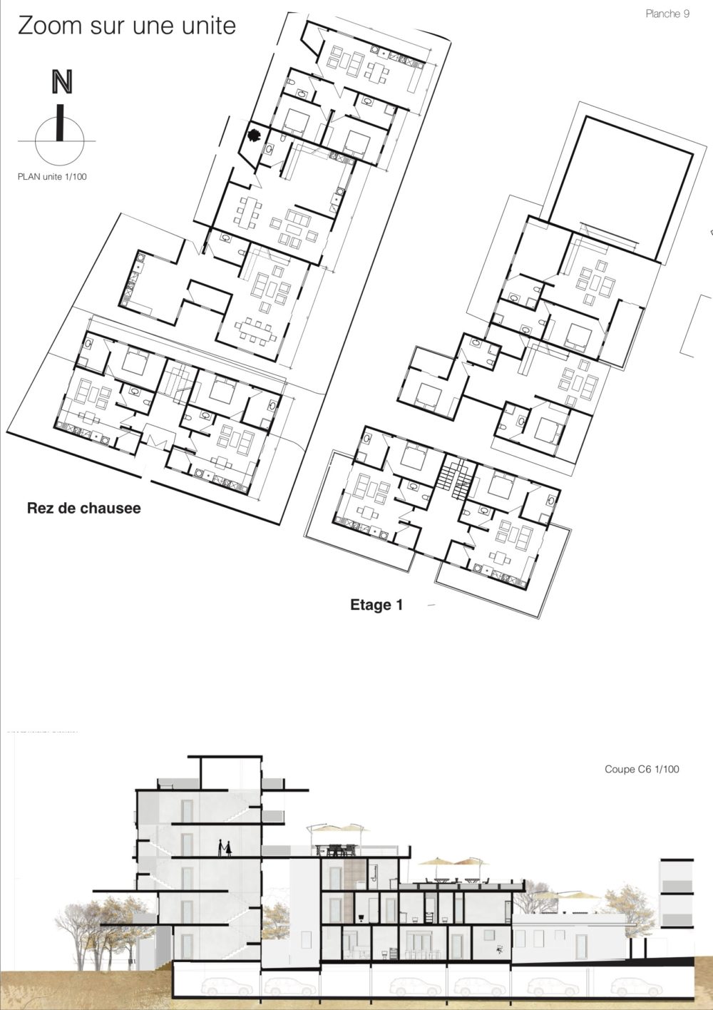
(Re)nouveau… Les architectes civils se sont intéressés à la commune de Veyrier (GE), commune à la frontière entre la Suisse et la France. L’objectif de leur travail est d’emboîter les échelles urbanos-architecturales passant du grand territoire jusqu’a leur lieu d’intervention, la « Dent creuse ».














Réalisation : createur.ch